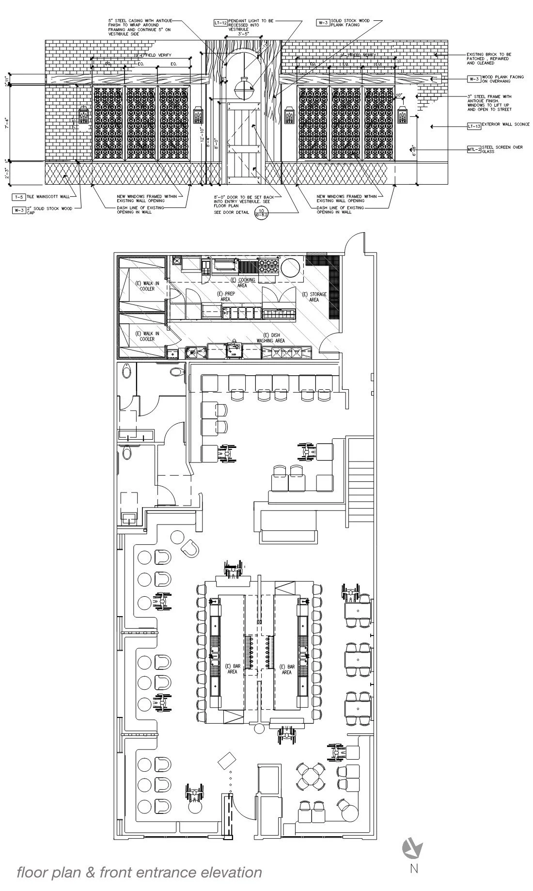
Toca Madera Restaurant

Location: Los Angeles, CA
Status: Completed 2015
Architect: Steven Garcia, Pirona Design Group

Toca Madera in Hollywood, California, is a meticulously designed restaurant and lounge that blends the vibrant energy of modern nightlife with a rich, immersive aesthetic. The design hinges on the careful juxtaposition of lighting and materiality, creating an intimate and dynamic atmosphere. The interior features a blend of aged metal, concrete tile, quartz stone, and lush upholstery, all contributing to a luxurious yet edgy vibe.

The space is infused with a theme of life and death, evident in design elements such as skull motifs and warm, moody lighting that evoke a sense of mystery. Exposed Edison bulbs and recessed lighting highlight the raw textures and create a candle-like glow throughout the space. This interplay between light and dark, combined with the intricate detailing in furniture and finishes, establishes Toca Madera as a unique destination and extravagant dining experience in Hollywood​.