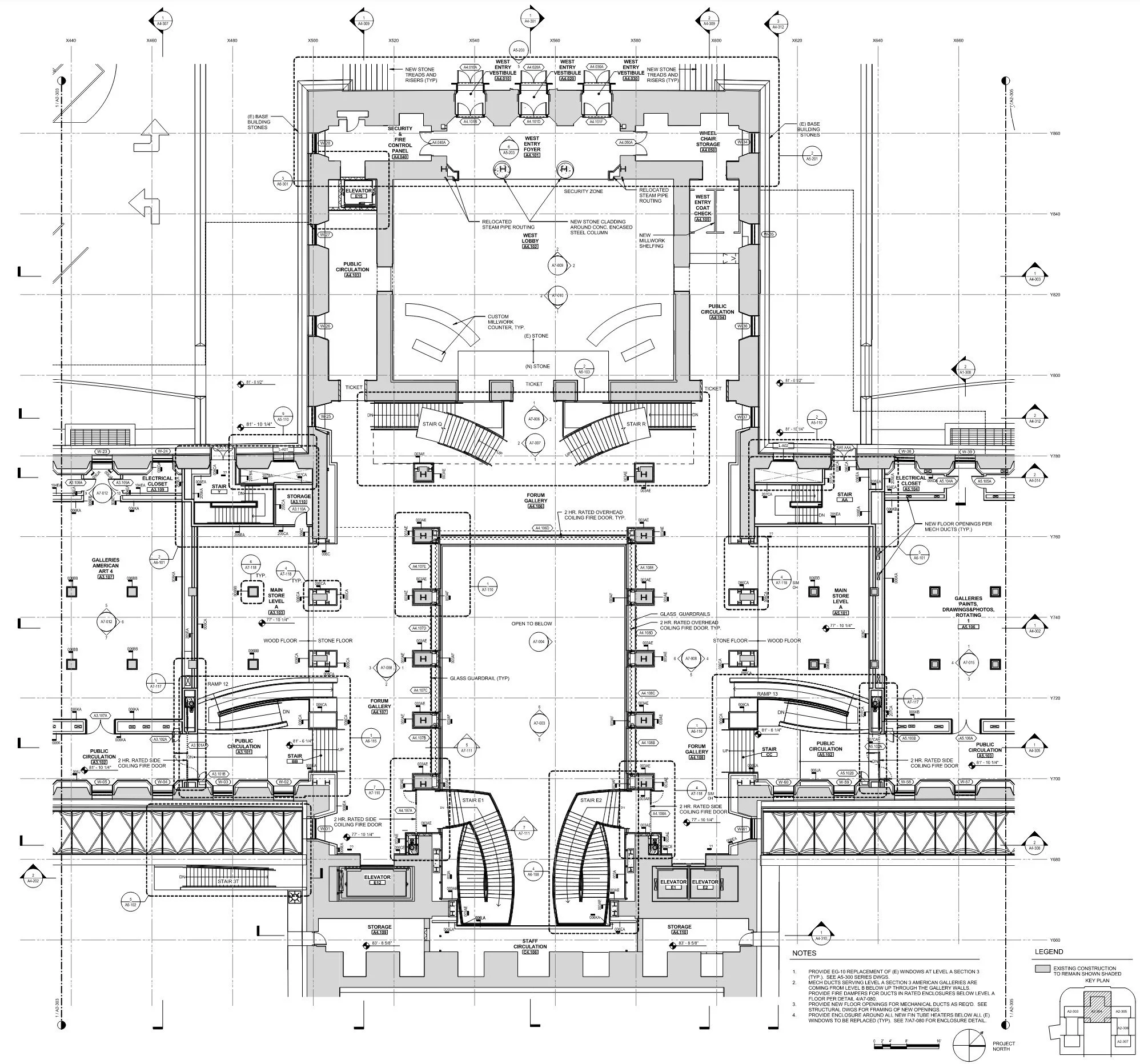
Philadelphia Museum of Art Core Project

Gallery Stair

Location: Philadelphia, PA
Status: Completed 2021
Architect: Justin Oh, Gehry Partners

The Core Museum Project is an intervention and renovation of the existing spaces at the Philadelphia Museum of Art. The project aims to reorganize the procession through galleries, gathering areas, retail, and back-of-house spaces. The work at Gehry Partners focused on the project’s architecturally intricate elements, including the stair, retail spaces, articulated entries, and restaurants. The Core Project included the demolition of an existing auditorium to transform it into a gallery space for large-format artwork. The gallery also serves as a transitional space, allowing circulation between two levels. The design studies began with physical model iterations that were translated into parametric 3D modeling software, Digital Project. This approach allowed flexibility in the geometry, which was crucial to meeting future construction tolerances and field measurement discrepancies.