Barman ADU

Location: Culver City, CA
Status: Construction Documents
Architect: Journey

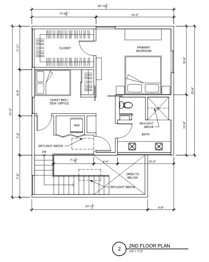
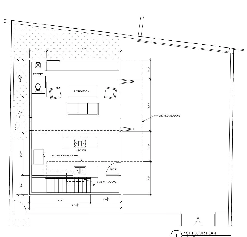
This Accessory Dwelling Unit (ADU) in Culver City, CA, is a testament to progressive architectural design achieved within a conscious budget. The structure’s clean, angular lines and minimalist aesthetic reflect a modern approach that aligns with both functionality and form. The open interior spaces are thoughtfully arranged to maximize natural light and foster a sense of spaciousness despite the compact footprint.

Using cost-effective materials, like the warm wood finishes in the interior and the streamlined exterior facade, demonstrates a strategic approach to budget management without sacrificing design quality. The design leverages the simplicity of forms and thoughtful detailing to create a sophisticated and welcoming space. The exterior hardscape, with its expansive patio and drought-tolerant landscaping, enhances the living experience while maintaining a low-maintenance, sustainable environment.